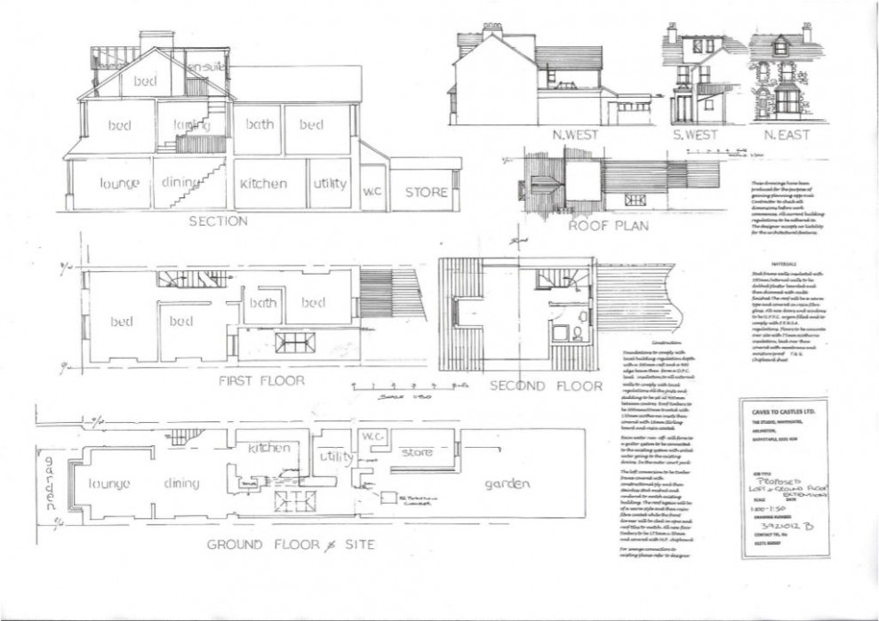
Extensions and Loft Conversions
One of the most popular and frequent Planning Applications in the U.K. is to extend our existing house to create more space and a better life style for our day-to-day living. This can come in the form of a two storey extension, which can increase bedrooms and bathrooms upstairs and large kitchens and lounges downstairs. Or a single storey extension creating a wow factor lounge and open plan kitchen and dining room area.
These are just a couple of examples that many householders apply for. If indeed there is no room to extend, there can be another option for a loft conversion and many older style houses that do not have a pre-built roof truss construction can easily, if height prevails, accommodate this and our design team can give you valuable information and help you with all these different aspects.

